Masters Studio Four

Tekoá Street Primary School, Florianopolis, Brazil

Project One

Project Vision

Subject
ABN512: Architectural Intelligence
Year
Semester Two, 2025
Type
Individual

Project Purpose

“to create a culturally-led school and community precinct that provides education, housing, and opportunities for First Nations families in Florianópolis”

The goal of the project was to create an integrated primary school and community hub in Florianópolis that provides safe, dignified, culturally affirming living arrangements for First Nations people of Santa Catarina while also delivering a P–6 educational facility shared by both Indigenous families and local citizens. The project aimed to celebrate and uplift Indigenous culture, counter histories of dispossession, and promote social, cultural, and educational exchange between communities. Supported hypothetically by the Brazilian Government and the UNDP, the project sought to empower the First Nations cohort to become a self-sufficient contributor to the city’s cultural vitality, strengthening ethnic diversity and fostering mutual understanding through shared spaces for learning, community life, economic opportunity, and cultural expression.

Surrounding Site Context

Programmatic & Strategic Direction

Early Design Explorations

Eastern Site Section 1:500
South-Western Site Section 1:500
Western Site Section 1:500

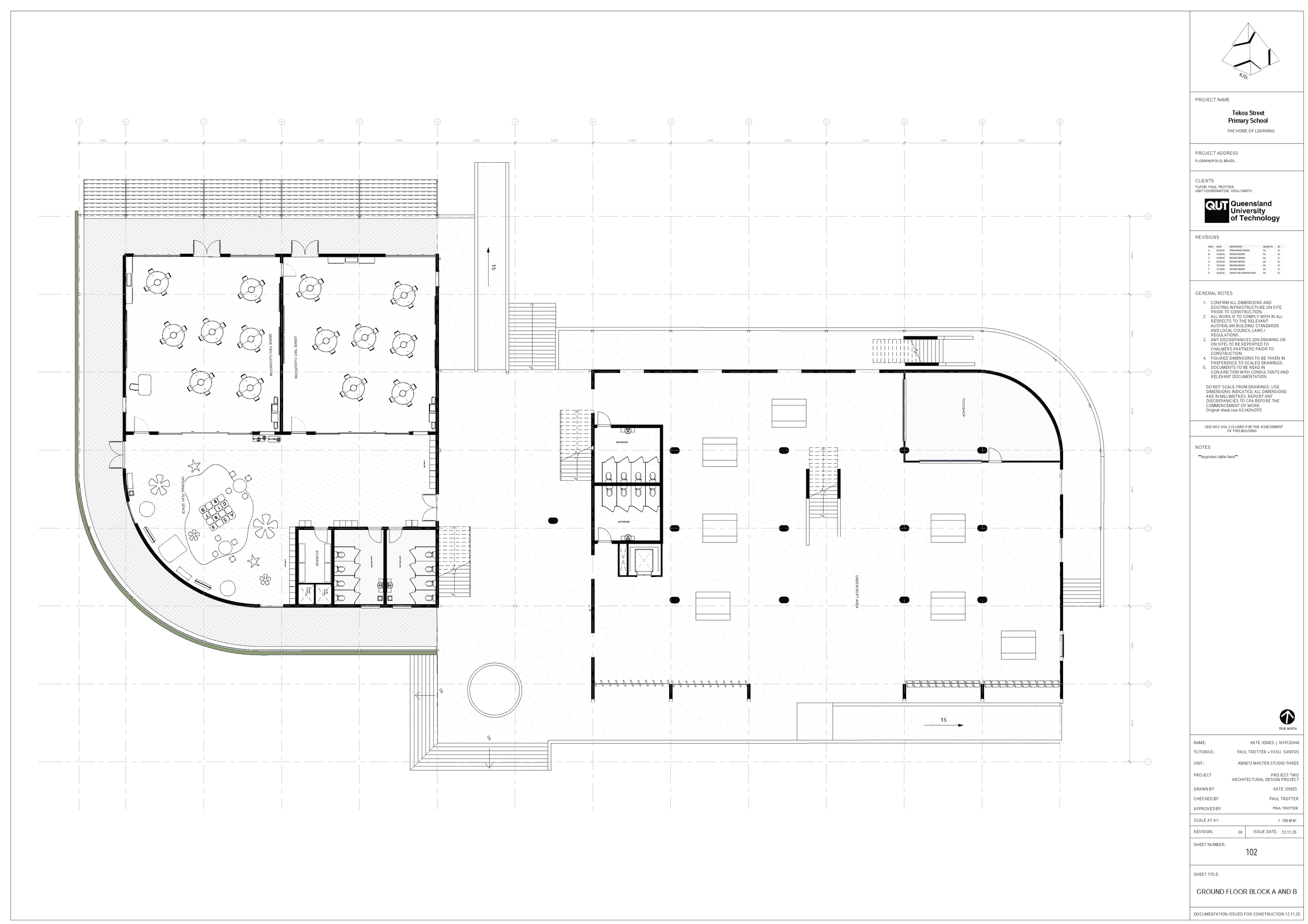
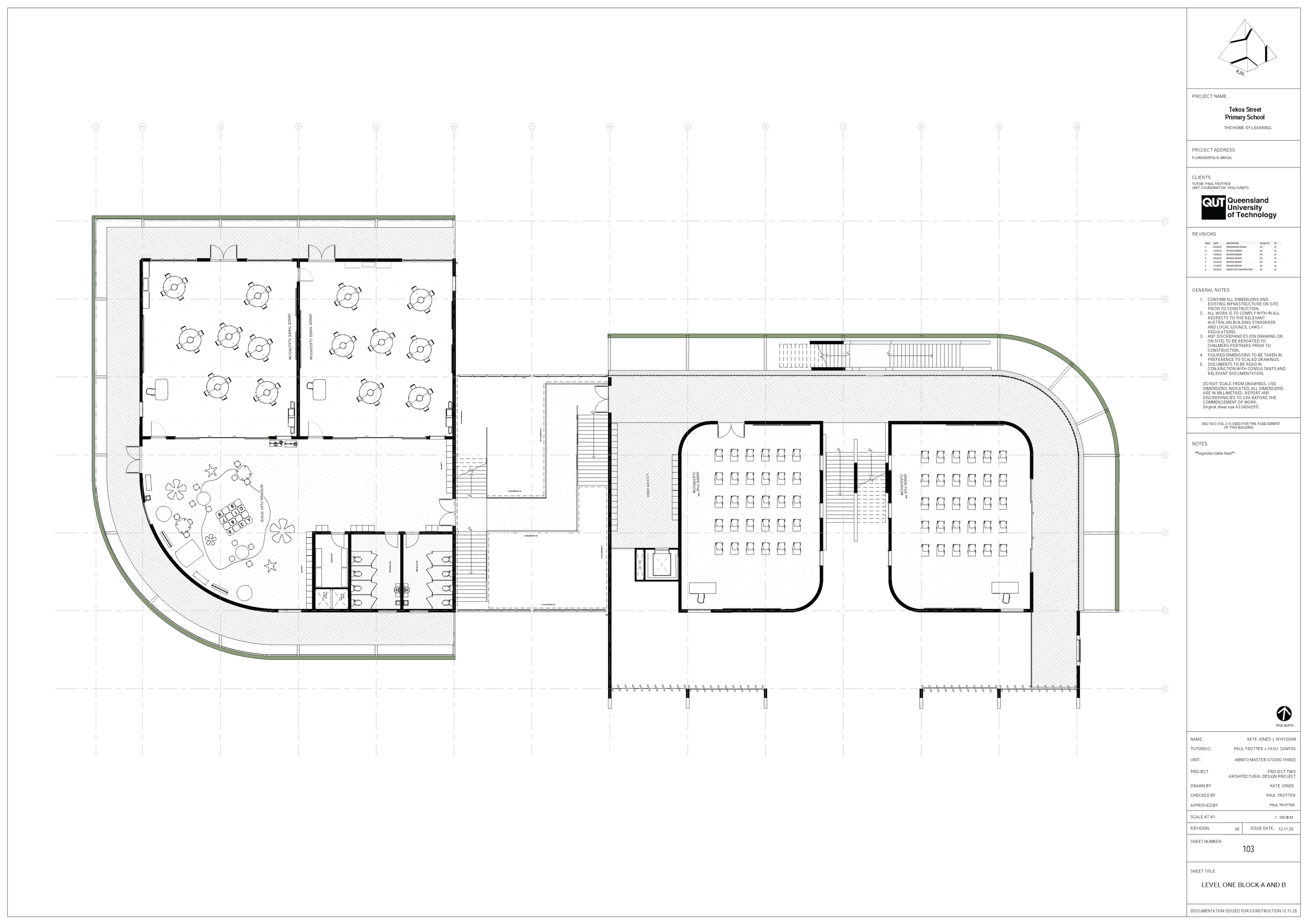
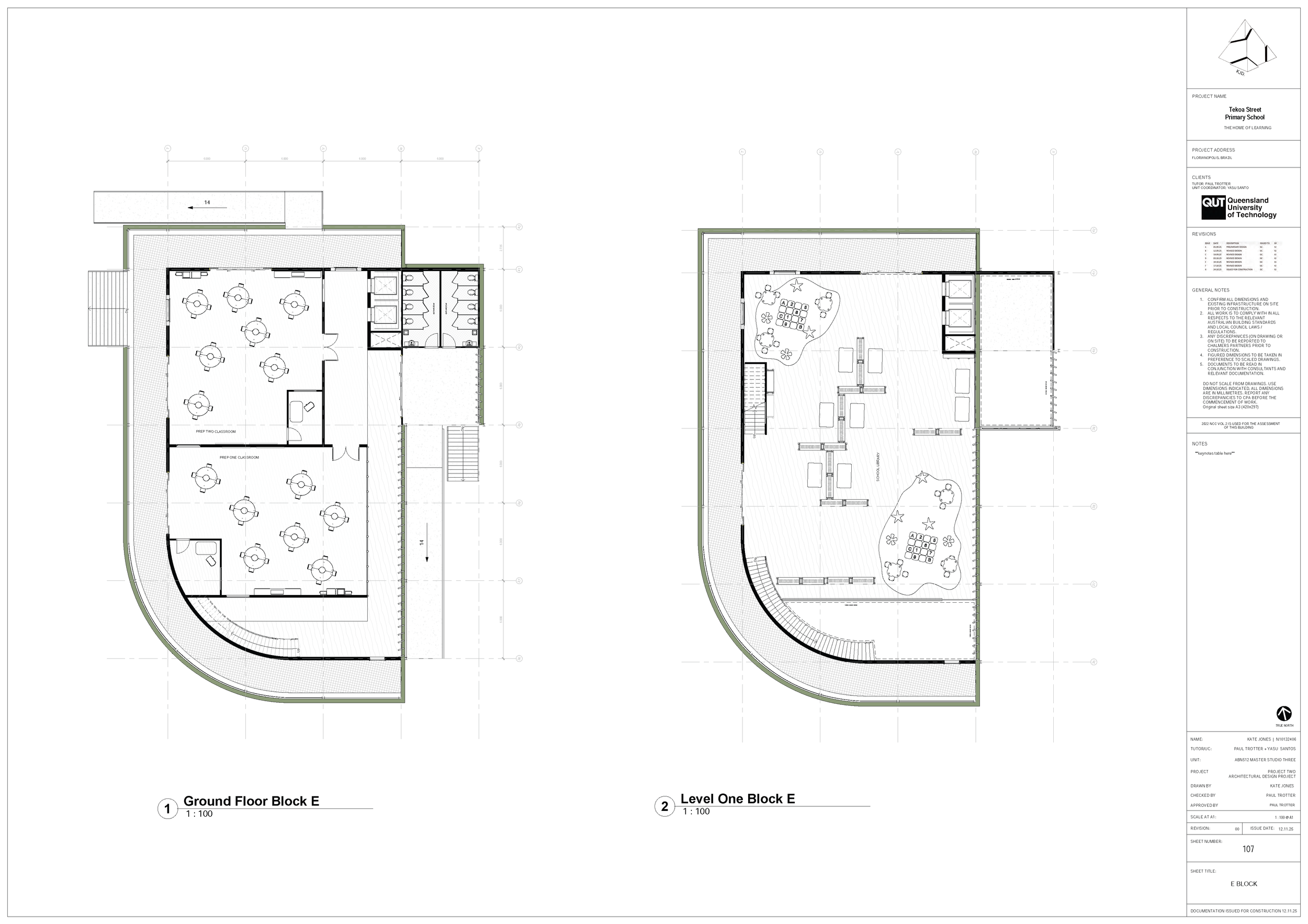
Project 2: The Home of Learning

Tekoá Street Primary School is driven by a simple idea: school should feel familiar, welcoming, and easy to move through - like home. The design is built around a long central spine that runs through the heart of the campus - a clear pathway that students follow every day. It acts as the main organising element, but it also has the character of a neighbourhood street: a place to walk, talk, play, and slowly grow into yourself.
The word “Tekoá” comes from the Guarani idea of the place of living, and that idea shaped the whole project. The campus is arranged like a neighbourhood. Small pockets branch off the main street, becoming places where kids gather, talk and play - similar to the front yards and footpaths where children spend time after school. 

Walk through the project.

Site Section 1:200

Project Drawings