Masters Studio Three

GRID. Centre for Modular Fabrication and Research Lab

Project One

Subject
ABN511 - Rethinking Tectonics
Year
Semester One, 2025
Type
Individual

public by design

QUT Gardens Point Campus

Design Response Strategy

Strengths
Weaknesses
Opportunities

fabrication as a performance

regenerative architecture

Brisbane River
Brisbane City Botanical Gardens
Fabricated Futures: A Living Lab at QUT is a regenerative research facility located on QUT’s Gardens Point campus, designed to be more than a building - it is a prototype for how architecture can think, adapt, and perform. Responding to the studio theme Rethinking Tectonics, the project explores how fabrication technologies, modular assembly, and regenerative materials can drive architectural expression and spatial experience.

Centre for Modular Fabrication and Research Lab

rethinking tectonics

Project One

What happens when a building doesn’t just house research - but becomes research itself?

Threats

Existing Site

QUT Gardens Point Campus

How are we using Robotic Technology?

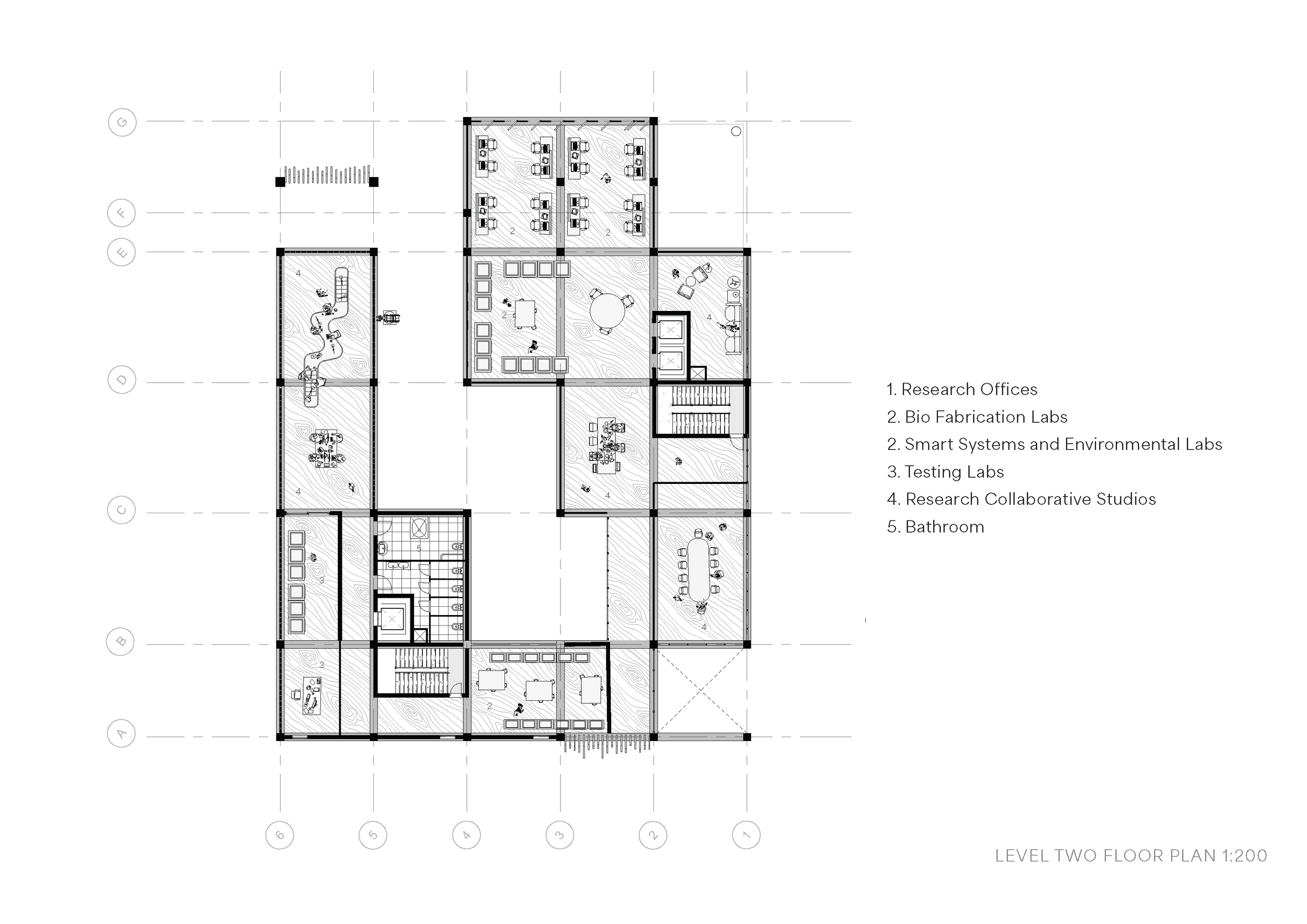
Robotic technology in this project is embedded as part of the building’s ongoing evolution - not just for efficiency, but to redefine how spaces can adapt, respond, and teach. Instead of a fixed brick monument, mobile robotic systems now move through the building to assemble, disassemble, and reconfigure internal wall panels. These panels are part of a modular construction system, showcasing materials currently being tested in the labs - such as mycelium bricks, laminated timber panels, or other bio-fabricated components.

PROJECT TWO

SITE PLAN 1:500
GRID is sited at QUT’s Gardens Point campus, positioned between O Block and P Block, adjacent to the primary Goodwill Bridge pedestrian link. The site forms a key transitional space between Brisbane’s CBD, the Botanical Gardens, and the inner university campus. It is characterised by its interface with industrial campus structures, planted landscape edges, and continuous pedestrian movement. The design proposes a new overpass connection from the Goodwill Bridge into the building, creating an active gateway between the bridge and the heart of the campus; while this connection is not depicted in the current drawings, it remains an integral part of the project vision. 
SPATIAL ORGANISATION AXONOMETRIC DIAGRAM
EXTERNAL ISOMETRIC VIEW